Inicio

Noticias

Arte

Arquitectura y Espacios

Diseño

Nosotros

Contacto

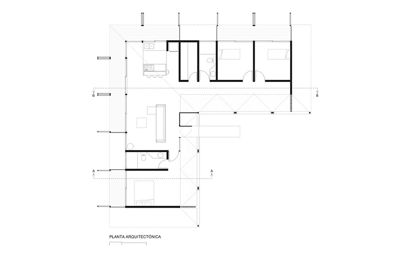
Casa en Cot, en relación directa con el valle

Autor: Iván Delgado

Imágenes: Roberto D´Ambrosio

12 de Marzo, 2024

La casa se emplaza cerrando dos bordes de un pequeño altiplano dentro de una finca agrícola extensa, para delimitar lo que se insinuaba como un patio de llegada y para lograr desde su interior vistas más directas sobre el valle de Orosi.

Se ubica al este del valle central de CR, sobre el piso altitudinal montano bajo a 2010 msnm y con evidencias de una historia geológica intensa.

 

Esta casa, de una aparente fragilidad y relativo aislamiento, nos invita a preguntarnos cuál es la cantidad mínima de materiales que debe juntarse para construir un refugio que funcione para las condiciones exigentes de la zona. Desde el proyecto, se hace un inventario según su cercanía y naturaleza renovable o no-renovable y sus grados de industrialización, se buscan que sean cercanos y/o livianos para no afectar los caminos de tierra, el ganado y el paisaje frágil en general. Los utilizados en mayor medida son: roca puzolánica extraída de las mismas zanjas para el desplante, usada para los muretes ciclópeos del zócalo (lo cual funciona como un reacomodo simple de materia), madera local aserrada de secciones pequeñas cuyo ensamblaje se geometriza para resistir las cargas de viento y paneles sándwich aislantes que se escogen a pesar de ser muy industrializados por sus prestaciones mecánicas, bajo peso y facilidad de instalación y aislamiento termoacústico. Su uso establece las dimensiones más importantes de la construcción: sus longitudes se determinan por la sumatoria de los anchos útiles de los paneles y el perfil de su sección transversal continua por la longitud de los paneles cortado en dos partes.  El ensamblaje de estos materiales se propone como un set de reglas y detalles constructivos repetitivos para adaptarse a los trabajadores locales con formación limitada en construcción, el orden geométrico estricto funciona como un corrector natural ante las vicisitudes de la obra.

La casa resiste el viento predominante con una fachada hermética en sus costados norte y este, mientras que los pequeños balcones al oeste y el sur funcionan como cámaras con doble acristalamiento que calientan el aire rápidamente cuando reciben radiación a manera de jardines de invierno y lo dejan pasar al interior de la casa de manera pasiva o activa si se abren los paneles internos. Los paneles sándwich mantienen el calor dentro por su capacidad aislante. La ventanería de vidrio exterior sirve para dejar salir el aire caliente si no se necesita y para permitir el uso de los balcones cuando se invierte ocasionalmente el patrón de vientos.

 

La construcción lograría insertarse como un instante en la larga historia natural del lugar y se familiariza con otras construcciones dispersas de la zona (como la lechería vecina) en cuanto a sus siluetas sencillas, materiales básicos, el orden previsible de sus estructuras de piezas delgadas y detalles, como los abrevaderos del ganado.

 

Diseño: Iván Delgado

Colaborador: Cristian Álvarez

Diseño eléctrico: Stephanie Badilla

Contratista: Marcos Torres

Área: 115 m2